上一篇我们介绍了Sanctuary Village的整体特点和最大气的户型,今天我们就来看看最实惠户型和最实用户型。
最实惠户型:Plan 1 @ Rosebriar from KB Home从价位上来看,这俩盘中最小的户型 Primrose 的plan 1 ( 2068尺,4房3浴)当然价格最实惠,base 1.325起,但还需要加上Lot premium (45K起)以及装修option价格(如果期房还有比较长的时间建成,那客人可以自选装修options, 根据售楼小姐的介绍,客人option的平均花费在6万;如果是即将到手的期房,那建商一般已经选好options,这样也会使最终销售价格高于base价格)。由于目前Primrose的plan 1已经售完,而Rosebriar有plan 1目前有两套正推出quick move-in promotion ( 100% free of pre-selected upgrades),而且这两套lot都在4000尺以上,客人mid1.4M就可以拿下2700多尺5房3.5浴的新房,建商免费赠送预选好的8万多精装修,最实惠户型就是它啦!(有兴趣的朋友可以联系我们索要这两套房的具体信息以及精装修的清单。)这套房子的户型设计没有特别令人惊艳的地方,但也没有让人值的吐槽的地方(此户型标配5个卧室,如果在修建早期,客人可以选择去掉一个卧室从而使厅更大)。一楼客卧套房再加半个卫生间(只有厕所没有澡间),开放式的厨房连接完全敞开的客厅和饭厅, 并没有额外formal dinning或者nook,两个车库,二楼上楼也是一个loft作为一个bonus room,作为media room的话稍小;四个卧室以及洗衣房和卫生间非常合理的分布在周围,既没有浪费很多走道空间,三个客卧去卫生间的距离也都不算远,主卧中规中矩,主卫单独的卫生间,shower+bathtub,double vanity, 衣橱的尺寸也是很舒服的了, 总之它虽然没有D.R.Horton的户型大气但设计流畅户型合理,是能满足你5个卧室需求的实惠新房。下面是KB Home 这两个盘model home的一些实拍,但不并仅限于plan 1, 仅供参考。图二十二: KB loft(bonus room)
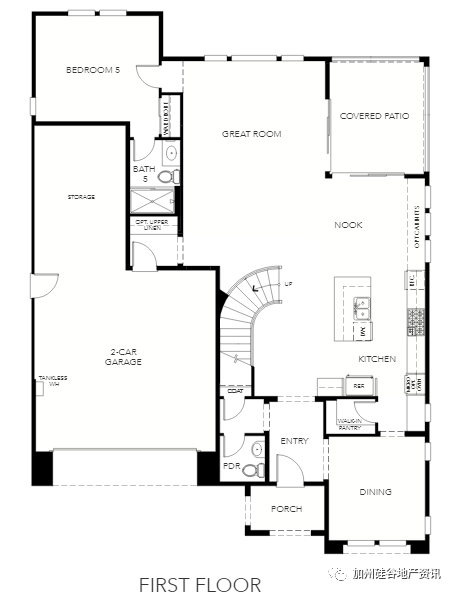
最后再带大家看看Landsea的Skylark盘。Skylark开盘比前面几个盘晚, 19年四月份开盘,夏天开始开放样板房,目前已售出大概30%左右。前面看完D.R.Horton和KB的9个户型后,已经开始有点审美疲劳,但Skylark的样板房做得挺下功夫的,装修和设计我们认为是这几组里面最现代和精致的。当然,样板房并不能代表一般新房的水平,比如他们的样板房据售楼小姐介绍花了至少200K+;skylark小区方正,lot size 3000+到5000+不等(所以也会有不同的lot premium),三个户型3179sqft起到3535sqft,标配5个卧室,卫生间从3.5到5.5不等。最实用户型:Plan 3AR @Skylark From Landsea这套3535sqft,5房5.5浴+bonus room的户型被称为最实用户型的主要原因有两个,首先是这套房有五个套房(suite)!每个卧室都带有自己的卫生间(据说豪宅的一个标准就是卫生间比卧室多,LOL);其次就是bonus room的设计了,其他两个建商的盘几乎都把bonus room设计成了loft,虽然开放明亮,但如果真的要做media room/play room,一是可能会影响到卧室里的人二是游戏/游玩效果也达不到最佳,而这个户型的bonus room是设计成过道边上的一间完整的房子,关起门来打游戏/健身再也不用担心影响到家里人啦!另外还有几个很不错的点:一是楼下有formal dining room也可以选择把dinning room改成办公室;二是除了双车库后还有带个storage的空间,样板房把它设计成了一个通水电的吧台,很有创意;三是一个卧室内做了飘窗设计,躺在上面看看书真是惬意!综上所述,这套房当选最实用当之无愧:)值得一提的一楼的楼梯设计,是比较少见半旋转楼梯设计,上面形成半弧形大挑空,经典大气,进门之后既开阔明亮又非常有空间感。这个户型加上不同的lot premium和预选装修后,价位目前大概在mid1.6M左右;此盘最近刚有了新release,感兴趣的小伙伴欢迎联系我们咨询。由于Sancturay village 建商户型众多,我们只挑选了比较又代表性的三套户型跟大家一起分享,关于这个社区新盘的具体情况,其他户型的价格和信息,近期折扣,买新房/二手房注意事项等等都欢迎联系我们做进一步的咨询!这几个盘里,除了skylark,其余几个都已经卖到了尾声,想要漂亮新房的朋友们不要错过啦~~
如果需要了解更多湾区市场可以关注Cathy的公众号,欢迎转发。
Cathy Liu 地产团队秉承专业,认真,客人第一的原则服务湾区多年,去年帮助近50家客人买屋卖屋,在Zillow 拥有5-star 客户评价。如果您有任何关于地产方面的问题和需求,请联系我们, 一定为您尽心解答。
联系Cathy:
电话:408-826-2548
Email:CathyLiu.Realtor@gmail.com
Wechat ID:cathyliu20
联系Kate:
电话:408-507-5556
Email:KateCaoRealtor@gmail.com
Wechat ID: caocui_seu
No comments:
Post a Comment