新盘介绍之 Mountain View(一)
各位朋友们,新年好!上一期我们介绍了Newark的新盘,今天我们来介绍下南湾最火热的城市之一,Mountain View的新盘。首先出场的建商Taylor Morrison的6Sixty。此盘已进入尾盘,只剩下3套了,正在清盘促销,距离101近,距离谷歌总部和Sunnyvale Site都大约车距10来分钟。好了,我们来具体看看它的位置:
离101隔了一堵隔音墙+Fairchild Dr,,在小区噪音的确是比较明显的,但室内好了很多,不同的位置有不同的体验。下面我们来看看剩下几套在小区什么位置,室内噪音如何。
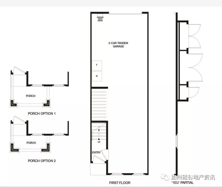
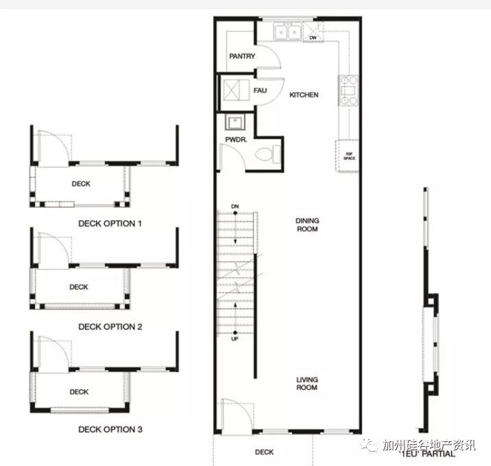
目前所剩三套都是plan 1,2Bedroom/2.5Bathroom, 1,122SF, 三层楼, 2个Tandem Garage ( sales强调了下其实是2.5个车库,除了能放两辆车外, 还有半个车位左右的空间可以DIY个小Gym或者Storage的)。这四个Lot分别是在同一栋的36,37以及另一边的23,其中37是end unit,采光更好,价格稍贵;而23不仅包含了冰箱洗衣机烘干机和Window Cover也是这四个中唯一一个可以做Rental贷款的(如果全现金则可以购买任意一栋没有限制);噪音方面,由于两个卧室分列两头,36,37这两栋楼上的一个卧室还是能听到101噪音,另一个卧室好一些;而23的相比其他三栋虽然采光差一些,噪音方面则是更小一些。下面我们再来看看他们的结构。先看结构图:
从结构图我们就可以看到,这个户型比较狭长,一楼进门就是长楼梯,除了车库也没有其他设置。二楼半个卫生间(厕所,无洗浴)然后开放式厨房+Dinning Room (我觉得用Dinning area更准确)+ Living room。这是目前比较常见的户型,但感觉这个Dinning Area+LivingArea稍微狭窄了点。楼上是两个套房(带卫生间)的设计,比较实用,一个卫生间是淋浴,一个是浴盆;顶高9 feet,所以也显得楼梯稍微有点高。下面我们来看看样板房的一些照片感受下:
另外小区有一个公共的小小公园区域, HOA $324。在35-36后面有11个小区停车位,另外Fairchild Drive上可以街趴。想知道小区/户型/房子更多细节朋友,欢迎联系我们。想要预算1.3以内,交通便利的MV2房新房,欢迎联系我们带你去砍价!(注:噪音问题非常主观,上文中对噪音的感受纯来自于主观感受,对噪音有concern的朋友,欢迎实地考察决定。)下面我们来说第二个新盘,建商 Warmington 的Waverly。这个盘距离上个盘6Sixty很近,也是靠近101, 12月中开盘但当时并没有release而是登记了感兴趣的顾客。1月11号release了一批房,直接卖掉5套(一共22套TH+四套SFH),周末据Sales介绍来了80多组人...他们有四个户型,其中TH有三个户型,分别是2B2.5B,1245sqft的户型一,4B3.5B,1734sqft的户型二,同样是4B3.5B的1931sqft的户型三。另外在小区靠近Evandale Ave一边的是四套SFH,其中一套样板房就是现在的售楼办公室。HOA大概370多。
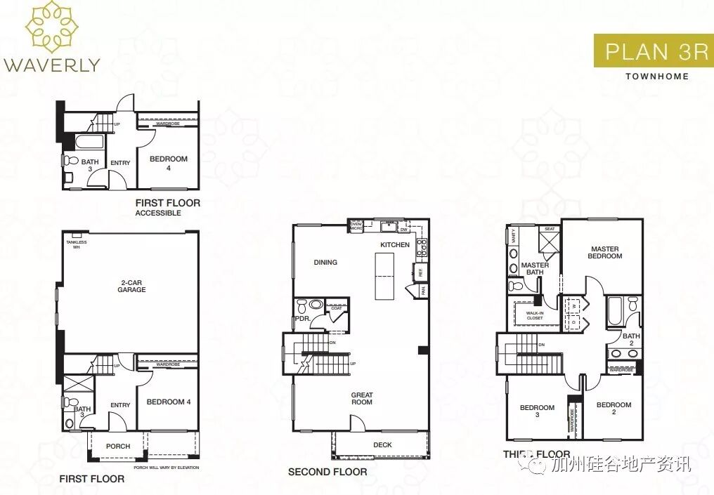
目前只有Plan 2 的Lot 21可以购买。这一排由于靠近101,虽然不能进去感受下,但估计屋子里应该还是有噪音影响。当然价格也是小区里偏低的(大概比同类型位置更远离101的低了差不多10万)。这套mid 1.4M,标配地毯,客人可以选择Upgrade成地板,6-7月完工。下面我们就来看看他们的户型,Plan 2 和 3 比较相近,我们正好来对比讲解下:
都是三层楼TH结构,Plan 2一楼一个客卧(可做书房)+卫生间(注意不是套间,卫生间是单独出入)。Plan 3也是这样,而且Plan 3一楼的卫生间和卧室相对,隔得更远点,均为双排双车库( Side By Side),它们的楼梯不是一坡到底而是由拐弯的短楼梯组成(这样更安全些,妈妈们不用担心小朋友一个跟头从头摔到底了:)二楼是两个户型有比较大区别的地方了,个人觉得3更实用方便,楼梯和半个卫生间在中间,然后一边是厨房+饭厅,一边是客厅,整个空间虽然是开放的,但也被楼梯和卫生间小小阻断下,天然的分割成了饭厅和客厅区域。但厨房的位置巧妙,既开放面对客厅,也对望饭厅,客厅宽敞大气,饭厅位置也是非常方便。2也是开放型厨房+客厅饭厅,但饭厅的位置设计得较远, 客厅除去饭厅又有点小,或许客人摆放家居时可以考虑将客厅和饭厅互换下位置可能更方便些。另外两个户型二楼都有个小阳台。三楼都是两个卧室+一个卫生间+洗衣房+主卫主卧的配置了,实用性区别不大。3的主卧主卫稍大。值的一提的是,据Sales介绍他们的厨房电器是意大利的高端牌子,另外他们利用一些零碎的空间做了些Build In的书桌,适合不想浪费一个卧室做书房,但又想有地方办公的:)
Plan1呢也是2房的TH,但目前他们并没有发售而是准备等着隔壁盘6Sixty的最后几套卖完之后再发售。如果实在感兴趣他们的Plan 1也可以联系我们。最后我们再来看看他们的SFH。在MV建商新建的SFH不多,所以需求应该不小,这里一共四套,在小区距离101最远的一边,大概2月才发售。据Sales说大概在2.1M左右,但建商还没有决定发行方式。
4房3卫,2002尺,虽然只比TH Plan 3(1931尺)大了几十尺,但由于是两层,所以整体感觉宽敞了很多。设计来讲简洁大方流畅,一楼双车库,开放式厨房+客厅+餐厅, 一个客卧+卫生间。二楼卧室分布合理,一边两个客卧中间夹一个共用卫生间,中间是洗衣房+开放式办公区域(有Build In的办公桌),一边就是宽敞的主卧+主卫。居住还是蛮舒服的,就是几乎没有后院,只有一点点Front Porch+SideYard,适合不愿意打理院子又喜欢独门独栋的客人。
整个盘的中间有个小小的公园区域,小区里大概会有6-7个小区停车位,小区两边的Fairchild和Evandale都可以街趴。这家建商有自己的Preferred Lender(Wells Fargo),他们比较热门的房子现在都需要找他们的合作贷款商,先做pre-qualify然后排队,比如上文提到的即将发行的Lot 13就需要pre-qualify了然后排队。如果想用其他lender会比较麻烦一点,更多信息欢迎联系我们。下一期我们将继续介绍Mountain View 其他的新盘, 欢迎订阅关注。如果需要了解更多湾区市场可以关注Cathy的公众号,欢迎转发。Cathy Liu 地产团队秉承专业,认真,客人第一的原则服务湾区多年,去年帮助近50家客人买屋卖屋,在Zillow 拥有5-star 客户评价。如果您有任何关于地产方面的问题和需求,请联系我们, 一定为您尽心解答。Email:CathyLiu.Realtor@gmail.comEmail:KateCaoRealtor@gmail.com
No comments:
Post a Comment